Construction

Magnolia Estates
Magnolia Estates proudly serves the citizens of Mississippi, Louisiana, and Arkansas by offering high quality & durable manufactured homes & modular homes for sale
Dealer License #:
Enter your address or APN/TMS to check if this home fits on your property
Enter your property street address or APN/TMS
Interior
Mechanical
Kitchen
Exterior
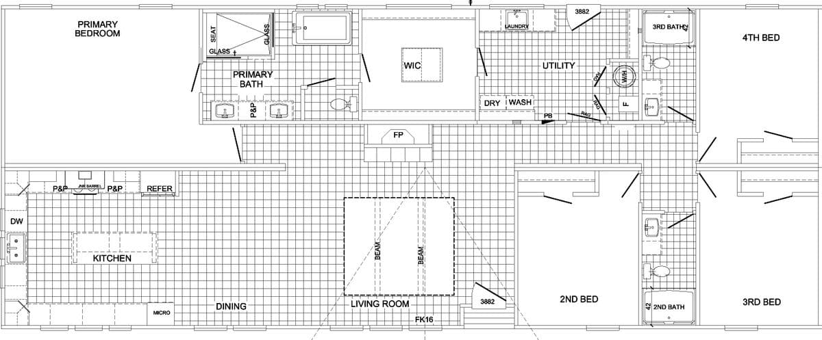
Images of homes are solely for illustrative purposes and should not be relied upon. Images may not accurately represent the actual condition of a home as constructed, and may contain options which are not standard on all homes.
Vicksburg
4 Bed | 3 Bath | 2,400 Sq. Ft. | 32' x 80'
4 Bed | 2 Bath | 2,176 Sq. Ft. | 32' x 68'
3 Bed | 2 Bath | 1,890 Sq. Ft. | 32' x 62'
3 Bed | 2 Bath | 1,804 Sq. Ft. | 28' x 66'