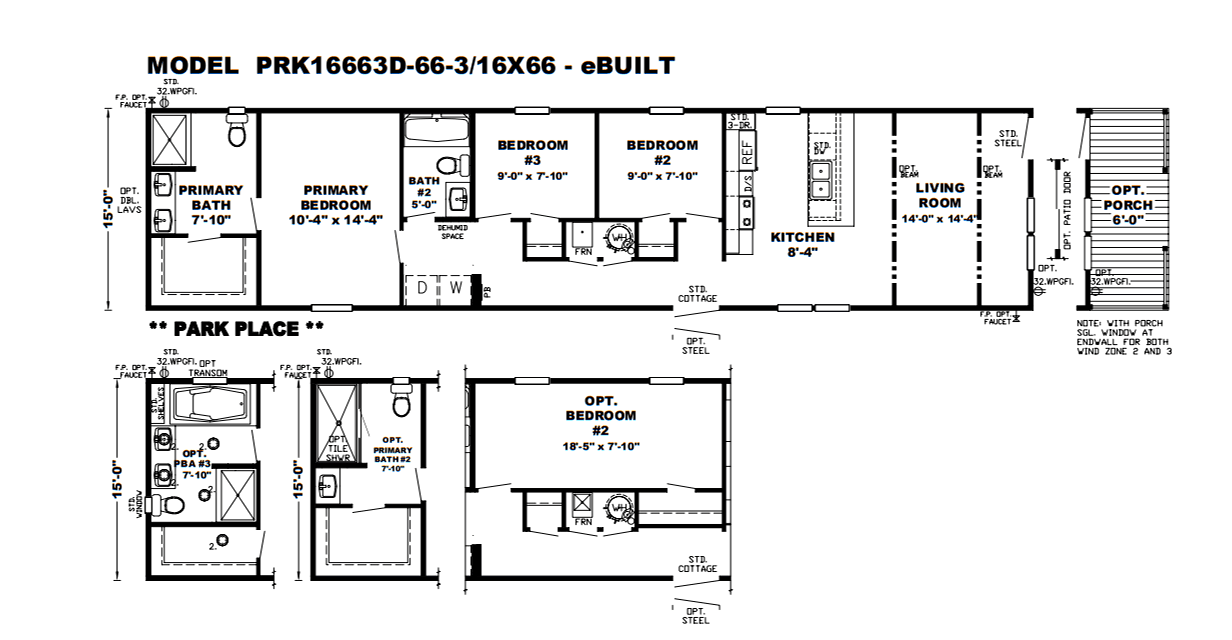
Homes | Cottage | Pearl